Konstepidemin Konstepidemin Konstepidemin
Konstepidemin Konstepidemin Konstepidemin
Konstepidemin Konstepidemin Konstepidemin
Konstepidemin Konstepidemin Konstepidemin
Konstepidemin logo

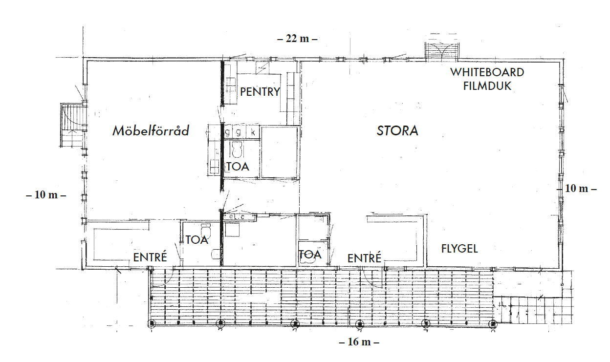
House No 8

På svenska

The venue is suitable for performances, concerts, seminars and more. Two rooms, of which the large room is 90 m² including entrance, kitchenette and two toilets (one of which is accessible for people with disabilities).

House 8 is equipped with:

  • 100 chairs
  • 6 tables 183×76 cm
  • 4 tables 122×76 cm
  • Grand piano
  • Projector screen
  • The room can be darkened

It is possible to rent:

  • PA-system
  • Projector
  • Grand piano

Contact reception@konstepidemin.se for prices.


Prices – Note! Prices will be adjusted in 2026.

Cleaning is not included. If the space is not sufficiently cleaned, the cleaning cost will be charged to the renter.

WEEKDAYS: MONDAY–FRIDAY

Day (09:00–17:00)

  • From 2100 SEK

Evening (18:00–23:00)

  • From 2500 SEK

Day + Evening (09:00–23:00)

  • From 2500 SEK

SATURDAY–SUNDAY AND PUBLIC HOLIDAYS

Available for full-day rental only.

Day + Evening (09:00–23:00)

  • From 3500 SEK

More spaces